Používame cookies

Súbory cookie a ďalšie technológie sledovania používame na zlepšenie vášho zážitku z prehliadania našich webových stránok, na to, aby sme vám zobrazovali prispôsobený obsah a cielené reklamy, na analýzu návštevnosti našich webových stránok a na pochopenie toho, odkiaľ naši návštevníci prichádzajú. Viac info

Zabehnutá menšia farma s pozemkom 3800m2 Želiezovce

Popis nehnuteľnosti

Zdieľať na Facebooku

DREAM TEAM ponúka na predaj menšiu farmu ideálnu pre podnikateľský alebo rodinný zámer, vhodnú najmä na chov domácich zvierat, pestovanie plodín, agropodnikanie, prípadne kombináciu bývania a podnikania v meste Želiezovce, časť Svodov. Hospodárska budova a veľkorysé, rovinaté pozemky o veľkosti 3800m2 ponúkajú dostatočné zázemie a súkromie na chov domácich, ale aj iných zvierat. Veľkou výhodou je možnosť stavby rodinného domu na jednom z predávaných pozemkov a spojiť bývanie s podnikaním.

🔸 Druh stavby: Hospodárska budova
🔸 Lokalita: Svodov / Želiezovce
🔸 Orientácia: Juh
🔸 Prístup: Áno
🔸 Vlastníctvo: 1/1, Bez tiarch
🔸 Voda: Mestská / Vlastný vrt
🔸 Siete: Elektrina – 220/380V / Plyn – pri pozemku / Odpad – kanalizácia
🔸 Pozemok: 3 800m2
🔸 Úžitková plocha budovy: 500m2
🔸 Cena: 245 000€

Momentálne je farma rodinne využívaná na podnikanie – chov zvierat. Pre lepšiu predstavu je farma kapacitne využiteľná na chov približne 20ks dobytka alebo 4 kone (ustajnenie) alebo 60ks ošípaných, alebo 40ks oviec / kôz alebo 600ks nosníc prípadne 2000ks mládok. Pozemok nachádzajúci sa za budovami (2400m2) je možné využiť na pestovanie, prípadne na výbeh chovaných zvierat. Pozemok pred budovami o veľkosti 970m2 je výbornou príležitosťou na stavbu rodinného domu prípadne možnosti dostavania hospodárskych budov a zväčšenie kapacity chovu. Vedľa tohto pozemku je priestor približne 250m2 vhodný na parkovanie osobných a nákladných áut. Pozemky sú komplet oplotené a výhodou je prístup aj pre väčšie stroje priamo z mestskej prístupovej cesty.

TECHNICKÉ ÚDAJE:
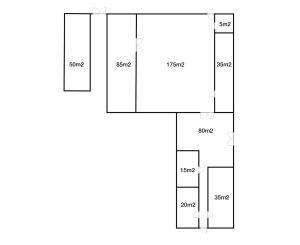
Hospodárska budova je vo výbornom suchom technickom stave bez žiadnych nevyhnutných opráv alebo nutných zásahov. Bola kolaudovaná v roku 2014 a po technickej stránke spĺňa všetky podmienky na využívaný zámer. Strecha je zdravá, krytina lisovaný plech, nové elektrické a vodovodné rozvody, odpad prispôsobený ku konkrétnemu typu chovných zvierat. Okrem možnosti využitia mestského vodovodu budova disponuje aj vlastným zdrojom vody – vrtom s výdatnosťou až 60.000l / hodinu. Hospodárska budova s úžitkovou plochou približne 500m2 je dispozične rozdelená na niekoľko miestností - pôdorys s rozmermi jednotlivých častí budovy je k dispozícii vo fotodokumentácii.

LOKALITA:
Nehnuteľnosť sa nachádza v meste Želiezovce, v pokojnej mestskej časti Svodov, ktorá je známa svojím vidieckym charakterom, dostatkom zelene a príjemným prostredím, ideálnym na pokojné bývanie aj podnikanie v súkromí. Mesto Želiezovce poskytuje kompletnú občiansku vybavenosť a to materské, základné a stredné školy, obchody, supermarkety, služby, zdravotné stredisko, lekárne, reštaurácie, kaviarne a iné.

KONTAKT: Juraj Ladziansky, 0944 500 834, ladziansky@dreamteam.sk
certifikovaný realitný maklér / člen realitnej únie

V cene sú zahrnuté poplatky a kompletné služby RK

Vlastnosti

Status:
aktívne
Vlastníctvo:
osobné
Plocha pozemku:
3800 m2
Typ zeme:
rovina
Teritórium:
Intravilán
Úžitková plocha:
500 m2
Zastavaná plocha:
550 m2
Stav:
novostavba
Celková plocha:
3800 m2
Orientácia:
juh
Inžinierske siete:
áno
Voda:
áno
Elektrika:
áno
Plyn:
áno
Kanalizácia:
áno
Voda - na pozemku:
áno
Voda - na pozemku - vodný zdroj:
áno
Voda - na pozemku - studňa:
áno
Elektrika - na pozemku - 230 V:
áno
Elektrika - na pozemku - 380 V:
áno
Plyn - na pozemku:
áno
Kanalizácia - na pozemku - kanalizácia:
áno

Hypotekárna kalkulačka

245 000 €
Mestská časť: Svodov
Obec: Želiezovce
Okres: Levice
Kraj: Nitriansky kraj
Druh: Domy
Typ: Predaj
Typ domu: Farmárska usadlosť

Juraj Ladziansky

Lokalita: Banská Štiavnica
  • Slovensky
  • English

Radi Vám poradíme

Podobné nehnuteľnosti